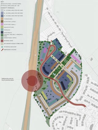
Napsbury Park Extension

Proposed 200 units residential scheme

A comprehensive master plan for 200 dwellings and flats. (Private and social) was prepared and well received and the client is presently negotiating with the planning department to achieve brownfield status.